Молотковые дробилки главным образом используются для измельчения материалов с компрессионной прочностью не выше 200 МПа. Молотковые дробилки применяются для известняка, гипса, угля, мергелистого известняка и песчанистого сланца в цементных индустриях. Молотковая дробилка способна за один цикл измельчать рудные минералы до маленьких частиц, равных 25мм, что значительно эффективнее и экономичнее в сравнении с традиционным многоступенчатым дроблением. Молотковая дробилка также может быть добавлена в производственную линию.
| Модель | Макс.размер подаваемого материала (мм) | Крупность выходного материала (мм, остаток на сите≤10%) | Производительность (тн/ч) | Мощность двигателя (кВт) |
| 500×500×600 | ≤25 | 50-70 | 110 | |
| 600×600×600 | ≤25 | 50-70 | 90-110 | |
| 600×600×600 | ≤25 | 80-120 | 130-190 | |
| 800×800×800 | ≤25 | 150-240 | 250-350 | |
| 800×800×800 | ≤25 | 240-280 | 355-400 | |
| 800×800×1000 | ≤25 | 320-350 | 560-630 | |
| 1000×1000×1000 | ≤25 | 350-450 | 630-710 | |
| 1000×1000×1500 | ≤75 | 900-1000 | 900-1000 | |
| 1000×1000×1500 | ≤75 | 1000-1200 | 2×(560-630) | |
| 1000×1000×1500 | ≤75 | 1200-1300 | 2×(630-710) |
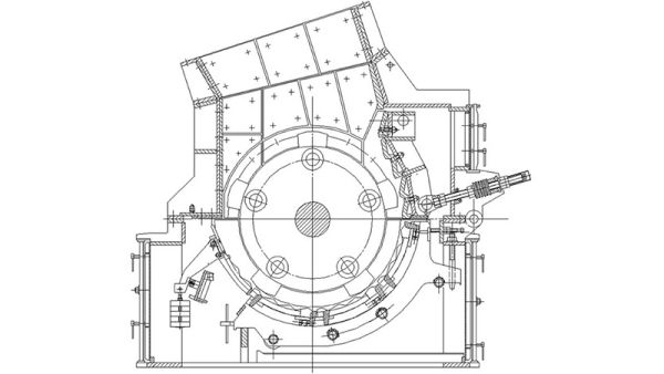
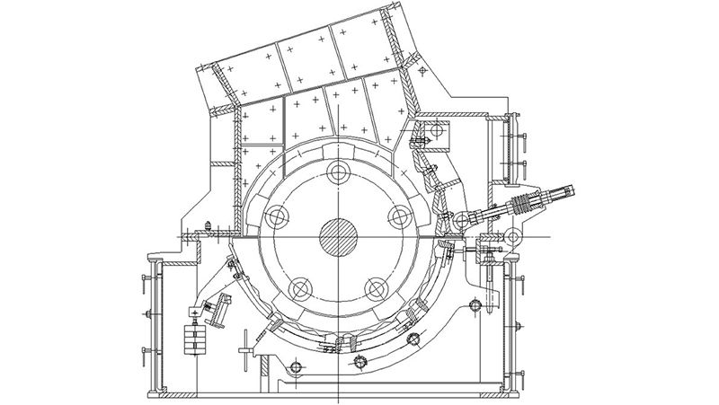
Ротор
Ротор является ключевой деталью молотковой дробилки, состоит из диска ротора, концевого диска, молотка, вала молотка, главного вала, шкива ремённой передачи, подшипника и опоры подшипника.
Молоток и диск ротора
Молоток и диск ротора изготовлены из ультра высокомарганцовистой стали. Благодаря литью стержней из износостойкого сплава, срок службы выше как минимум в 1,5 раза по сравнению с обычными сплавами.
Корпус
Все внутренние поверхности корпуса, контактирующие с обрабатываемыми материалами, защищены броневыми плитами для предотвращения истирания.
Дробящая плита
Дробящая плитка устанавливается напрямую на передней части ротора, а размер подаваемого материала определяется щелью между дробящей плиток и циклом вращательного двигателя. Изготовлена из высокомарганцовистой стали путем литья, имеет максимальный разъем одинаковый с максимальным размером выгружаемых материалов.
Колосниковая решётка
Колостниковая решетка состоит из литых балок из высокомарганцовистой стали. Данные балки решетки закрепелены на нижней части ротора, покрывая почти полностью все рабочие поверхности по окружности, благодаря чему влажные материалы могут быть легко убраны.
Защитная дверь
Благодаря оснащению защитной дверью данного оборудования, посторонние материалы немедленно выгружаются, использую центробежную силу, а дверь автоматически закрывается для предотвращения случайного удаления необработанных материалов. Защитная дверь также может быть оставлена открытой, когда требуемый разгрузочный размер большой.
SINOMALY - поставщик комплексных услуг по проектированию, закупкам и строительству (EPC контракт) в цементной промышленности, наши основные услуги включают консультации, оценку, планирование, инжиниринг, закупки, управление проектами, строительство, монтаж оборудования и пуско-наладочные работы.
Свяжитесь со специалистами SINOMALY, чтобы обсудить, как мы можем помочь вам в реализации ваших проектов от начала до конца.